Mise en ligne en cours
Projet réalisé avec Sarah Lorenzini architecte
Chantier en cours
























_
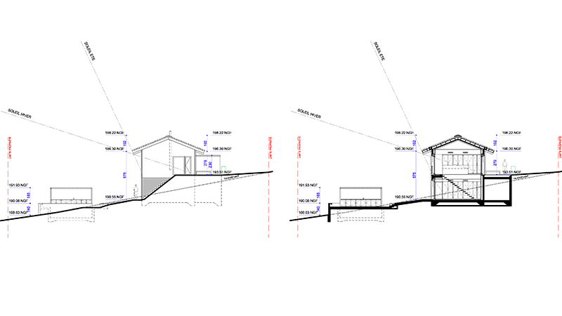
MAISON C01 – ENDOUFIELLE [32]
Maître d’Ouvrage : privé
Lieu : Endoufielle [32]
Architectes : sarah lorenzini et christophe maisonobe architectes
Equipe : atelier christophe maisonobe architecte
Images : Onirism
BET / Consultants : –
Surface : – m2
Budget : – €
Date : Etudes Juin-Octobre 2020 – demande de permis de construire en cours
_