Mise en ligne en cours
Chantier
























Permis de construire accordé

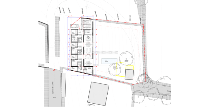
Plan masse

Plan

Coupes – existant et projet

Vue depuis la rue

Vue depuis le jardin

Projet

Etat des lieux


_
MAISON B02 – FLAVIN [12]
Maître d’Ouvrage : privé
Lieu : Flavin [12]
Architectes : atelier christophe maisonobe architecte
Equipe : Alexandre Jozan
Images : –
BET / Consultants : –
Surface : 245 m2
Budget : 290 000 €
Date : Etudes Avril-Septembre 2016 – chantier en cours
_
