Coupes élévations existant et projet

Coupes élévations existant et projet

Coupes élévations existant et projet

_
Il s’agit d’une maison au milieu d’une clairière à 20 minutes au nord-est de Toulouse.
La maison des années 60, est de construction traditionnelle sur deux niveaux.
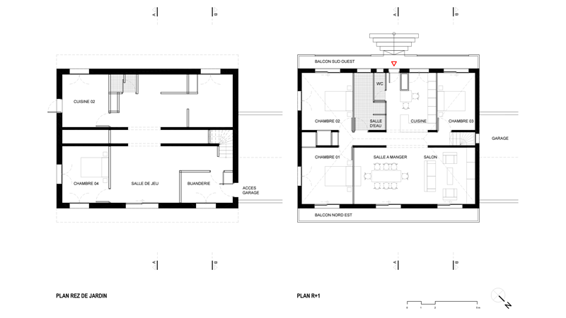
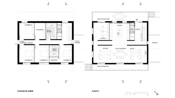
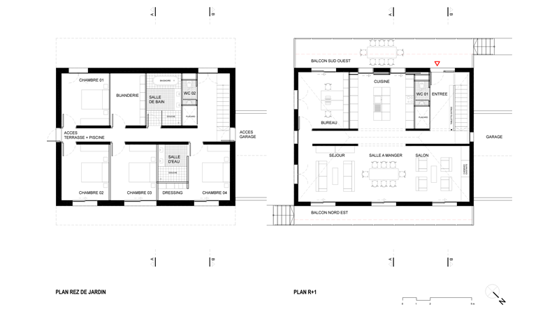
La demande initiale consiste à réaliser une extension de 50 m2 de l’étage, avec une transformation de la cuisine et de l’entrée de la maison.
La maison n’étant occupée que sur un seul des deux niveaux, à savoir l’étage, le projet consiste à ré-aménager les deux niveaux pour investir pleinement la Maison. A l’étage on trouve les espaces cuisine, salon, séjour et bureau ; au rez-de-jardin les espaces des chambres. La nouvelle position des escaliers joue un rôle prépondérant dans le ré-aménagement de la maison ainsi que dans le rapport qu’entretiennent le rez-de jardin et l’étage. Par la même la maison retrouve une relation entre le jardin et l’étage.
Cette nouvelle position des escaliers donne naturellement l’emplacement de l’entrée de la maison dans la continuité du cheminement issue des aires de stationnement.
La cuisine libérée de l’entrée et ouverte sur le salon confère une transparence nord-sud sur le jardin et donne avec les terrasses-balcons qui se sont élargis, une relation de dedans-dehors de tout l’étage.
_
MAISON D01 – VACQUIERS [31]
Maître d’Ouvrage : privé
Lieu : Vacquiers [31]
Architectes : atelier christophe maisonobe architecte
Images : –
BET / Consultants : –
Surface : 240 m2
Budget : 150 000 € SHON
Date : Etudes Novembre 2014
_







