











Chantier intérieur

_
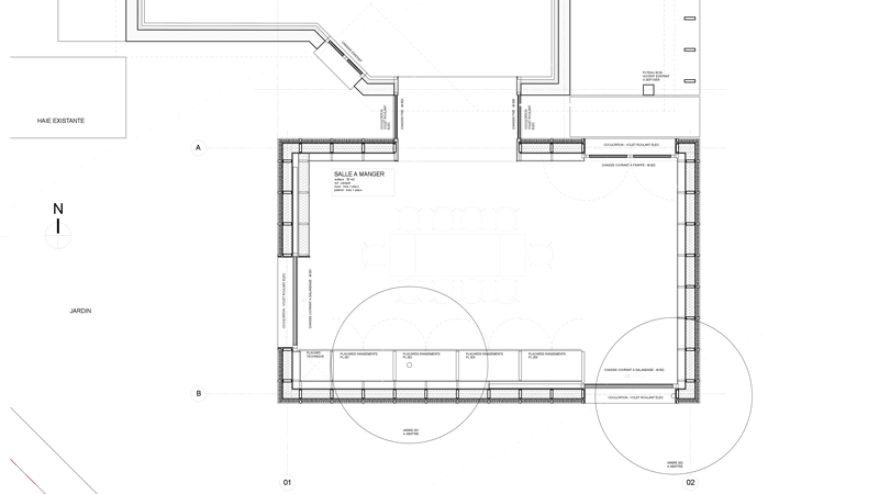
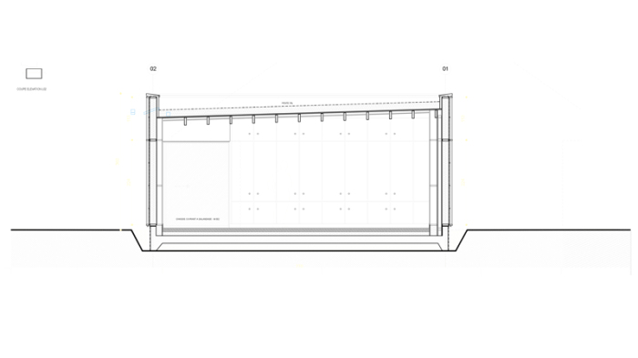
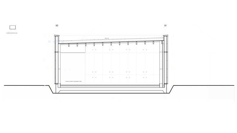
MAISON M01 – LE MONASTERE [12]
Maître d’Ouvrage : privé
Lieu : quartier St Jacques – Le Monastère [12]
Architectes : atelier christophe maisonobe architecte
Images : –
BET / Consultants : –
Surface : 43 m2
Budget : 65 000 €
Date : Livraison avril 2016
_


























